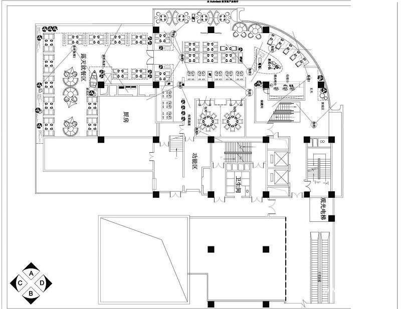
郑州火锅店平面设计,火锅店平面结构设计分析,火锅店装修如何考虑到营业中的合理性,也就是火锅店平面分布合理性,毕竟如果设计的不合理会影响到正常的营业,那么我们应该考虑到餐饮装修那些设计因素呢?下面让我们一起了解一下火锅店装修知识。

确定火锅店设计公司后,要尽可能的准确表达清楚自己对火锅店的设想,查看效果图时,不仅要对内部装修,颜色等创业性的内容进行审核,还要对所需店铺的功能是否完备,顾客员工活动移动的点等相关最低限度的基础进行审核。
这对于一般的火锅店满座时的店员人数应为每十个餐位就配备一名,接下来要考虑火锅店的四大流程:1、接受顾客点菜后,将订单下到后厨;2、从出菜口处取出菜肴,将其送至餐桌;3、就餐结束后收拾餐具并将其送至洗碗池;4、去收银台结账。在图纸上模拟四个流程,对桌椅摆放进行思考,避免造成员工工作绕路,顾客行走不便等问题。
原则上来说无论店铺多小,都应该具备以下功能:陈列柜,储藏室。收银台,客用卫生间,主厨房,洗碗池,空调设备,更衣室,配菜太,仓库,音响,基本家具餐具,照明,冷库等基础功能。查看设计图时要注意是否存在设计漏洞忽视了店铺本该具有的功能。
郑州火锅店平面设计,火锅店平面结构设计分析,装修设计的合理性可以让顾客用餐流程更加的方便,增加用户体验,让每个装修都给顾客带来收益是我们的关键所在。
转载请注明原文地址:http://m.dqdwyzn.cn/wenda/4902.html
现在预约咨询,立即享受免费量房设计&施工报价
10秒快速在线申请